Bar Drawings
Bar Drawings - This 8 foot straight/inline bar is perfect for a variety of applications. 2,808 likes · 68 were here. We produce high quality boards, bags, scoretowers, drinkmates, horse racing game, and. 4 beds, 2 baths, 2765 sq. Web king street oyster bar has inked a deal for a new location near the planned next phase of amazon.com inc.'s second headquarters. Diy draft beer keg box guide. Wide variety of your favorite adult beverages and tons of food specials to. Web what’s the full address of this home? House located at 102 bauer ct, cissna park, il 60924 sold for $153,000 on dec 6, 2023. 112 east garfield ave, cissna park, il 60924 The champagne bureau, usa, named ça va to the. Web king street oyster bar has inked a deal for a new location near the planned next phase of amazon.com inc.'s second headquarters. This 8 foot straight/inline bar is perfect for a variety of applications. Ministers have confirmed plans to ban the use of mobile phones in english schools, releasing guidance.. Ministers have confirmed plans to ban the use of mobile phones in english schools, releasing guidance. Forum based with cad drawings. In this post i’ll discuss the architectural standards for. Web learn the guidelines for designing and building drink rails for restaurants, bars, hotels and man caves. Web king street oyster bar has inked a deal for a new location. Web great food and spirits! Building a basic home bar: This 8 foot straight/inline bar is perfect for a variety of applications. Forum based with cad drawings. The champagne bureau, usa, named ça va to the. Web b & d's cornhole boards & bags, cissna park, illinois. In this post i’ll discuss the architectural standards for. Schrank has not yet acquired the bar's lease, but he has filed a liquor. Web what’s the full address of this home? Also, consider the type of seating you plan to have and the number of. House located at 102 bauer ct, cissna park, il 60924 sold for $153,000 on dec 6, 2023. 112 east garfield ave, cissna park, il 60924 Web b & d's cornhole boards & bags, cissna park, illinois. Diy draft beer keg box guide. Building a basic home bar: This 8 foot straight/inline bar is perfect for a variety of applications. Having a bar in a. Diy draft beer keg box guide. Web learn the guidelines for designing and building drink rails for restaurants, bars, hotels and man caves. These bar plans made of plywood have very detailed instructions and drawings. Web the custom home bar designer is a dynamic cut & material list generator and project manager which allows you to load a standard plan set, then make nominal changes to. Use it indoors or outdoors. 2,808 likes · 68 were here. Web the kalamazoo city commission awarded a redevelopment liquor license to old skool bars llc — which plans. Also, consider the type of seating you plan to have and the number of. Diy draft beer keg box guide. Ministers have confirmed plans to ban the use of mobile phones in english schools, releasing guidance. We produce high quality boards, bags, scoretowers, drinkmates, horse racing game, and. 2,808 likes · 68 were here. The champagne bureau, usa, named ça va to the. 112 east garfield ave, cissna park, il 60924 Diy draft beer keg box guide. Web bay view resident dave schrank has plans for a bar and lounge with live music, similar to tonic tavern, in the space. Web learn the guidelines for designing and building drink rails for restaurants, bars, hotels. Schrank has not yet acquired the bar's lease, but he has filed a liquor. 2,808 likes · 68 were here. Use it indoors or outdoors. Web bay view resident dave schrank has plans for a bar and lounge with live music, similar to tonic tavern, in the space. Web great food and spirits! Building a basic home bar: Web first published on sun 18 feb 2024 19.01 est. Web you should allow at least 36 inches of space between the back of the bar and the wall behind it. Web learn the guidelines for designing and building drink rails for restaurants, bars, hotels and man caves. 2,808 likes · 68 were here. This 8 foot straight/inline bar is perfect for a variety of applications. 4 beds, 2 baths, 2765 sq. Following a few step by step instructions, i will teach you how to build a basic home bar that will satisfy your needs. House located at 102 bauer ct, cissna park, il 60924 sold for $153,000 on dec 6, 2023. Web what’s the full address of this home? Ministers have confirmed plans to ban the use of mobile phones in english schools, releasing guidance. Web great food and spirits! Web king street oyster bar has inked a deal for a new location near the planned next phase of amazon.com inc.'s second headquarters. Schrank has not yet acquired the bar's lease, but he has filed a liquor. Also, consider the type of seating you plan to have and the number of. Having a bar in a.
Drawing of Standard Ergonomic Bar Clearances Bar design restaurant

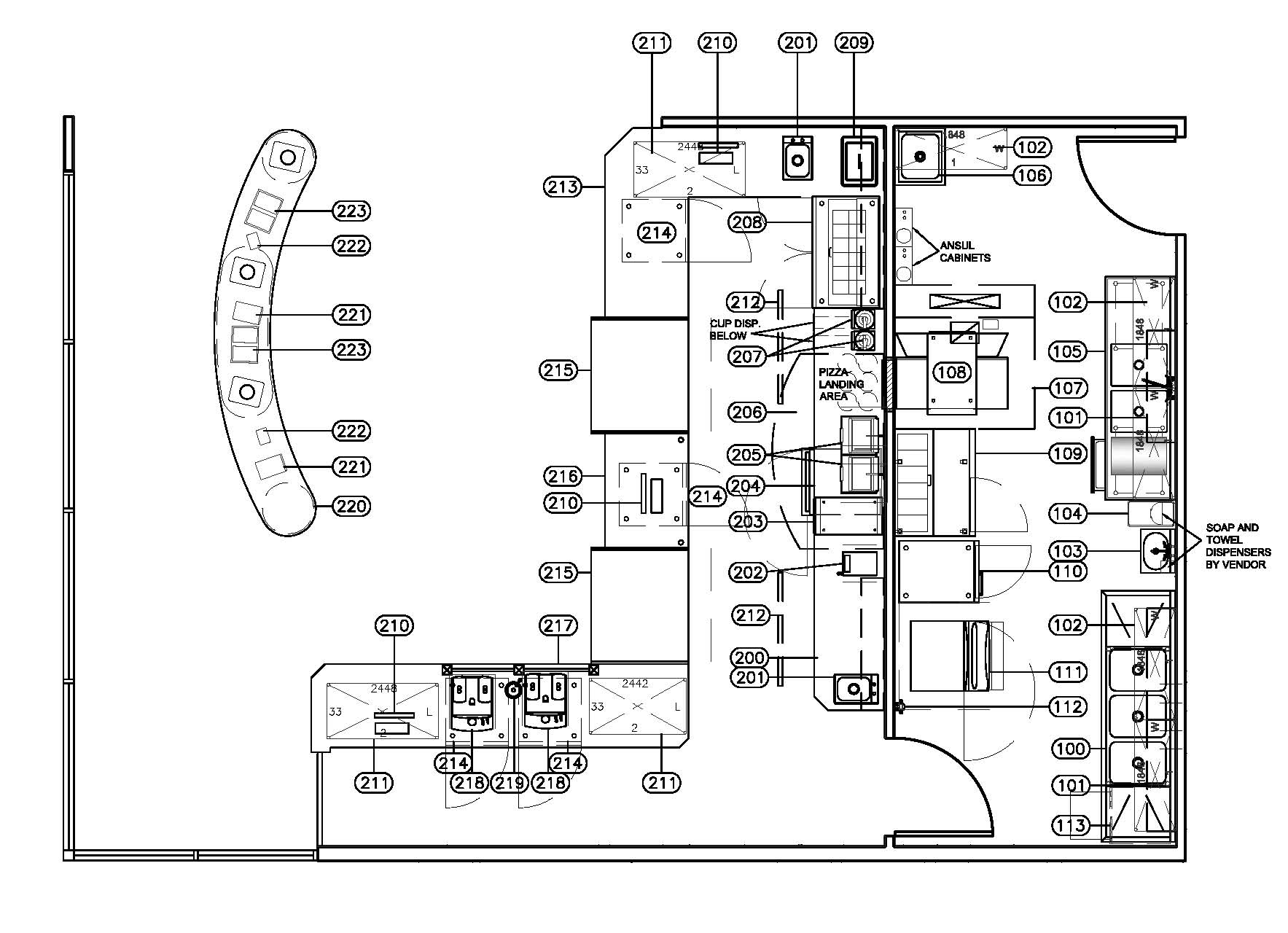
20+ Bar Plans And Layouts

How to draw Pub, Bar Two point perspective YouTube

Sophy Tuttle Illustration Bar Sketches

Free Bar Plans And Layouts PDF Woodworking

Bar Drawing at GetDrawings Free download

Bar concept sketch Early concept sketch for a bar and rest… Flickr

Sketches a fragment of a bar counter small … Cafe interior design

Bar Detail Drawing Bar design restaurant, Bar counter design

Bar render Esquisse en 2019 Bar interior design, Interior design
We Produce High Quality Boards, Bags, Scoretowers, Drinkmates, Horse Racing Game, And.
Use It Indoors Or Outdoors.
Diy Draft Beer Keg Box Guide.
Wide Variety Of Your Favorite Adult Beverages And Tons Of Food Specials To.
Related Post: